Кухня РН230303
Условия
-
Сумма кредита от 10 000 до 1 000 000 рублей.
-
Срок кредита от 6 до 24 месяцев
-
Первый взнос 0 - 50%
-
Необходимые документы: Паспорт + на выбор (ИНН, Пенсионное страховое свидетельство, заграничный паспорт, водительское удостоверение)
Замер
Доставка
| Ширина: | 3110+3040 |
| Стиль: | Модерн Классика Неоклассика Современные |
| Фасады: | МДФ Пленка |
Современная стильная вместительная кухня
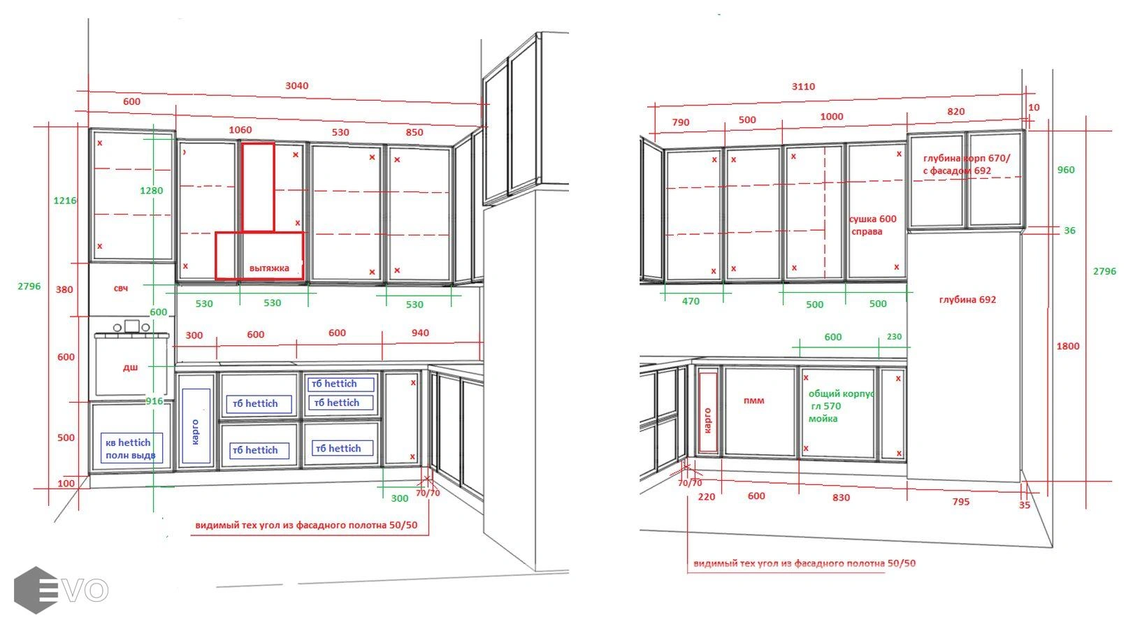
•Размеры: 3040х3110мм, Высота: 2796мм.
•Фасады: МДФ Эмаль 3.12 NCS S2005-Y60R (кашемир).
•Каркас: ЛДСП 18мм U702 ST9 кашемир серый.
•Цоколь МДФ Эмаль NCS S2005-Y60R (кашемир).
•Фурнитура: Петли и выдвижные механизмы тандембокс «BLUM».
•Столешница: влагостойкий пластик H3730 ST10 Гикори натуральный.
•Мойка клиента/смеситель клиента.
•Техника: клиента.
•Фартук: клиента.
•Комплектация: Ручка-скоба 128мм, отделка черный матовый M8201.128.MB, Сушка 2-уровневая в базу 600/18, с рамкой, поддон 1 шт. (пластик), отделка сталь 701/60XP.551A.
•Особенности: большой выбор цветовой гаммы, изготовление мебели под размеры помещения.
•Стоимость проекта*: 512 080 руб.
*в стоимость включено мебель, сушка, ручки, сторонка, столешница. Замер, доставка и сборка в подарок.
Варианты отделки
Ждем вас в гости
Наши студии:
Каталог
Все для комплексной покупки
Сроки изготовления напрямую зависят от модели, которую вы выбрали. Кухни с фасадами из массива изготавливаются дольше, т.к. их производственный процесс гораздо более сложный и многоступенчатый. Сроки изготовления также зависят от элементов, которые вы выбрали, персонализированные, нестандартные элементы могут увеличить срок их поставки. В зависимости от этих факторов срок изготовления может варьироваться от 1,5 до 2 месяцев. Так же, к основному сроку изготовления необходимо добавлять 5-10 дней на транспортно-логистические вопросы.
Дизайн-проект, максимально удовлетворяющий вашим пожеланиям, мы делаем бесплатно. Наши менеджеры-дизайнеры помогут вам определиться с моделью вашей будущей кухни, грамотно подберут встраиваемую технику, подберут цветовую гамму самой кухни исходя из стилистики интерьера и пожеланий клиента, составят технически грамотный проект под размеры помещения.
Кухни все изготавливаются по индивидуальному заказу. Мы подготовим дизайн-проект под любое помещение и конфигурацию. В зависимости от выбранных фасадов сможем изготовить нестандартные модули и размеры. Однако есть редкие исключения видов фасадов, по которым невозможны нестандарты, об этом вас предупредит дизайнер при выборе материалов для проекта.
Дизайнеры помогают составить дизайн проект относительно пожеланий клиента после чего делают предварительный расчет т.к стоимость зависит от конфигурации, наполнения кухни, от выбранного материала, цветового исполнения и особенностей проектирования.
Гарантия на мебель - 2 года. Устранение проблем зависит от характеристики самой проблемы, по договору срок устранения рекламации составляет до 45 дней.
У нас действует акция "Сборка и доставка по Москве в подарок". О подробных условиях акции можно узнать у наших дизайнеров при подготовке проекта. Более 97% наших кухонь попадают под условия акции. В редких случаях стоимость сборки составляет 10% от стоимости мебели и доставка будет платная (+ доплата выезда за МКАД)
В случае заключения договора выезд замерщика по Москве бесплатно. Выезд замерщика на адрес осуществляется платно по Москве (+ доплата за выезд за МКАД). Стоимость выезда уточнит менеджер при согласовании выезда. Оплата за услугу производится на месте замера. В дальнейшем, при оформлении заказа и заключении договора, стоимость замера вычитается из стоимости заказа, таким образом замер для наших клиентов производится бесплатно.
ЛДСП EGGER
Фурнитура BLUM
от 20 рабочих дней
Размерный ряд
до 1мм
сборка - бесплатно









































