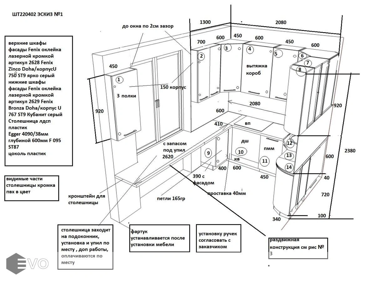
Кухня ШТ220402
Условия
-
Сумма кредита от 10 000 до 1 000 000 рублей.
-
Срок кредита от 6 до 24 месяцев
-
Первый взнос 0 - 50%
-
Необходимые документы: Паспорт + на выбор (ИНН, Пенсионное страховое свидетельство, заграничный паспорт, водительское удостоверение)
Замер
Доставка
| Ширина: | 6320 |
| Стиль: | Модерн Современные |
| Фасады: | ЛДСП Пластик |
- Размеры: 3200*2080*1620мм, Высота: 2380мм.
- Фасады: МДФ Пластик Fenix лазерная кромка 2628 Fenix Zinco Doha / Fenix лазерная кромка 2629 Fenix Bronza Doha
- Каркас: ЛДСП 18 мм U750 ST9 ярко серый / U767 ST9 Кубанит серый
- Цоколь ПВХ белый матовый
- Фурнитура: Петли и выдвижные механизмы тандембокс «Hettich»
- Столешница: влагостойкий пластик 38мм F095 ST87 Мрамор Сиена серый
- Мойка и смеситель клиента
- Техника: клиента
- Фартук клиента
- Комплектация: Лоток ( серый) 400Rejs, Сушка двухуровневая с алюминиевой рамкой 700 Rejs, Ручка-скоба 128мм отделка сталь шлифованная/макмарт арт.M2759.128.MSN
- Особенности: большой выбор цветовой гаммы, изготовление мебели под размеры помещения
- Стоимость проекта*: 347 280 руб
*в стоимость включено мебель, столешница, сушка, ручки. Замер, доставка и сборка .
Варианты отделки
Ждем вас в гости
Наши студии:
Каталог
Все для комплексной покупки
Сроки изготовления напрямую зависят от модели, которую вы выбрали. Кухни с фасадами из массива изготавливаются дольше, т.к. их производственный процесс гораздо более сложный и многоступенчатый. Сроки изготовления также зависят от элементов, которые вы выбрали, персонализированные, нестандартные элементы могут увеличить срок их поставки. В зависимости от этих факторов срок изготовления может варьироваться от 1,5 до 2 месяцев. Так же, к основному сроку изготовления необходимо добавлять 5-10 дней на транспортно-логистические вопросы.
Дизайн-проект, максимально удовлетворяющий вашим пожеланиям, мы делаем бесплатно. Наши менеджеры-дизайнеры помогут вам определиться с моделью вашей будущей кухни, грамотно подберут встраиваемую технику, подберут цветовую гамму самой кухни исходя из стилистики интерьера и пожеланий клиента, составят технически грамотный проект под размеры помещения.
Кухни все изготавливаются по индивидуальному заказу. Мы подготовим дизайн-проект под любое помещение и конфигурацию. В зависимости от выбранных фасадов сможем изготовить нестандартные модули и размеры. Однако есть редкие исключения видов фасадов, по которым невозможны нестандарты, об этом вас предупредит дизайнер при выборе материалов для проекта.
Дизайнеры помогают составить дизайн проект относительно пожеланий клиента после чего делают предварительный расчет т.к стоимость зависит от конфигурации, наполнения кухни, от выбранного материала, цветового исполнения и особенностей проектирования.
Гарантия на мебель - 2 года. Устранение проблем зависит от характеристики самой проблемы, по договору срок устранения рекламации составляет до 45 дней.
У нас действует акция "Сборка и доставка по Москве в подарок". О подробных условиях акции можно узнать у наших дизайнеров при подготовке проекта. Более 97% наших кухонь попадают под условия акции. В редких случаях стоимость сборки составляет 10% от стоимости мебели и доставка будет платная (+ доплата выезда за МКАД)
В случае заключения договора выезд замерщика по Москве бесплатно. Выезд замерщика на адрес осуществляется платно по Москве (+ доплата за выезд за МКАД). Стоимость выезда уточнит менеджер при согласовании выезда. Оплата за услугу производится на месте замера. В дальнейшем, при оформлении заказа и заключении договора, стоимость замера вычитается из стоимости заказа, таким образом замер для наших клиентов производится бесплатно.
ЛДСП EGGER
Фурнитура BLUM
от 20 рабочих дней
Размерный ряд
до 1мм
сборка - бесплатно









































